Informații
- ID 10089
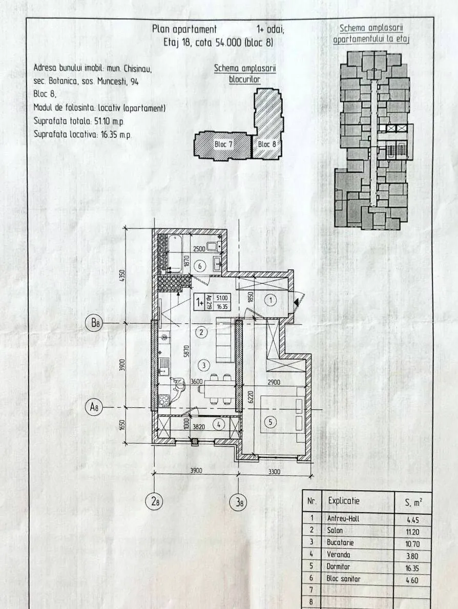
- Suprafață totală, m2 51
- Nivelul 18
- Număr de nivele 19
- Balcon 1 balcon
- Fond locativ Cladire nouă
- Tipul clădirii Cărămidă
- Starea apartamentului La alb
- Living Apartament cu living
Avantajele
Descriere
TOATE OFERTELE DISPONIBILE LE GĂSIȚI AICI www.topestate.md
Vă propunem apartament cu suprafața de 51 m.p. situat pe str. Dimineții Compania de construcții SkyHouse
Divizarea imobilului: - Dormitor - Living - Bucătărie - Bloc sanitar - Balcon - Antreu
Dotări și avantaje: - Variantă albă - Geamuri termopan - Încălzire autonomă - Pardosea caldă - Ușă blindată - Ascensor - Teren de joacă - Parcare deschisă - Curte de tip închisă
În imediată apropiere: - Magazin - Farmacie - Grădiniță - Școală Acces facil la transportul public în orice direcție a orașului.
Comision 0% pentru cumpărători!
Compania TOP ESTATE vă ajută în procesul de vânzare- cumpărare a unui imobil, teren sau spațiu comercial, beneficiind de consultanță juridică în domeniul imobiliar și accesarea unui credit ipotecar.
