Informații
- ID 10453
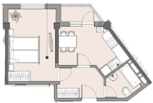
- Suprafață totală, m2 38
- Nivelul 7
- Număr de nivele 7
- Balcon 1 balcon
- Fond locativ Cladire nouă
- Tipul clădirii Design individual
- Starea apartamentului La alb
- Seria Individuală
Avantajele
-
Încălzire autonomă
-
Geamuri termopan
-
Ușă blindată
-
Teren de joacă
-
Supermarket
-
Şcoală
-
Grădiniţă
Descriere
TOATE OFERTELE DISPONIBILE LE GĂSIȚI AICI www.topestate.md
Spre vânzare apartament cu suprafața de 38 m.p. localizat pe str. Cetatea Chilia
Divizarea imobilului: - Antreu - Dormitor - Bucătărie - Bloc sanitar
Beneficii: - Variantă albă - Geamuri termopan - Încălzire autonomă - Izolare termică și fonică - Ușă blindată - Teren de joacă - Parcare deschisă - Curte de tip închis
În imediată apropiere: - Magazin - Farmacie - Grădiniță - Școală
Acces la transportul public.
Comision 0% pentru cumpărători!
Compania TOP ESTATE vă ajută în procesul de vânzare- cumpărare a unui imobil, teren sau spațiu comercial, beneficiind de consultanță juridică în domeniul imobiliar și accesarea unui credit ipotecar.

