Informații

  • ID 10937
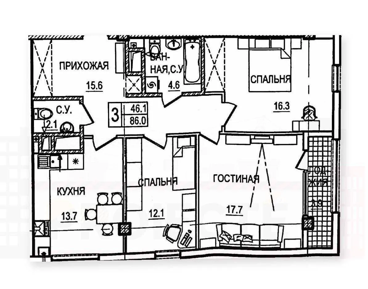
  • Suprafață totală, m2 86
  • Nivelul 7
  • Număr de nivele 17
  • Balcon 1 balcon
  • Fond locativ Cladire nouă
  • Tipul clădirii Combinat
  • Starea apartamentului La alb
  • Seria Individuală
  • Living Apartament fără living

Avantajele

  • Încălzire autonomă
    Încălzire autonomă
  • Geamuri termopan
    Geamuri termopan
  • Geamuri panoramice
    Geamuri panoramice
  • Ușă blindată
    Ușă blindată
  • Ascensor
    Ascensor
  • Teren de joacă
    Teren de joacă
  • Supraveghere video
    Supraveghere video
  • Zonă de parc
    Zonă de parc
  • Şcoală
    Şcoală
  • Grădiniţă
    Grădiniţă

Descriere

TOATE OFERTELE DISPONIBILE LE GĂSIȚI AICI www.topestate.md 

Spre vânzare apartamet cu suprafața de 86 m.p. amplasat pe str. Tudor Strișcă
Dezvoltator Exfactor Grup


Compartimentare:  
- 3 dormitoare,
- balcon,
- bucătărie,
- 2 blocuri sanitare,  
- antreu.

Dotări și avantaje: 
- Variantă albă
- Geamuri termopane
- Încălzire autonomă
- Ușă blindată
- Ascensor
- Teren de joacă​
- Parcare deschisă
- Curte de tip închisă

În imediată apropiere: 
- Magazin
- Farmacie 
- Grădiniță
- Școală
Acces facil la transportul public în orice direcție a orașului.  

Comision 0% pentru cumpărători!

Compania TOP ESTATE vă ajută în procesul de vânzare- cumpărare a unui imobil, teren sau spațiu comercial, beneficiind de consultanță juridică în domeniul imobiliar și accesarea unui credit ipotecar.