Информация
- ID 11086
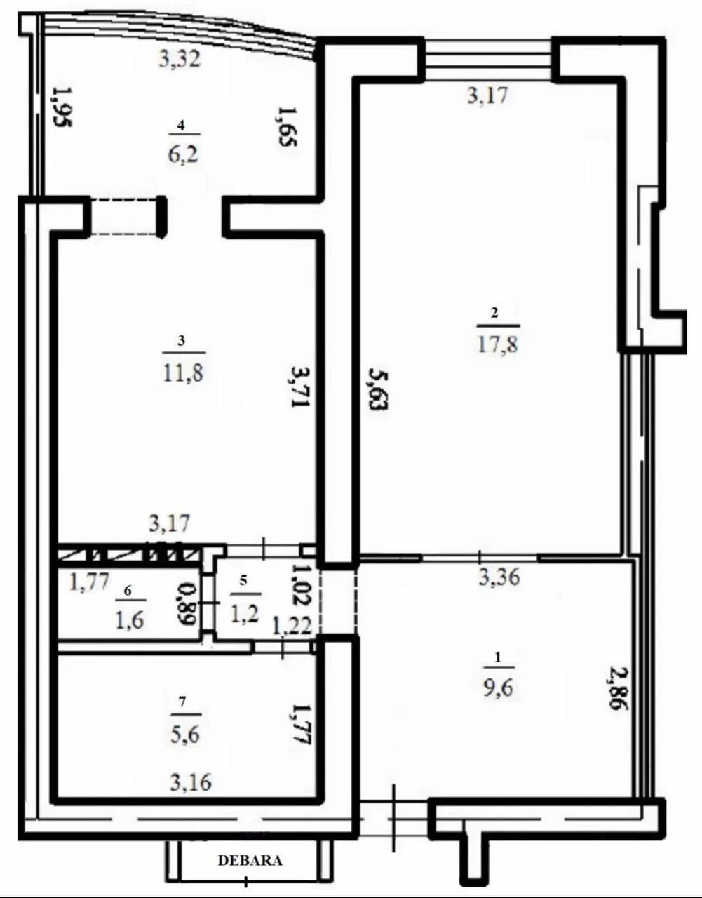
- Общая площадь, м2 54
- Этаж 3
- Количество этажей 9
- Балкон 1 балкон
- Жилой фонд Новострой
- Тип здания Cărămidă
- Состояние квартиры La gri
- Серия Индивидуальная
- Ливинг Apartament cu living
Преимущества
-
Автономное отопление
-
Стеклопакет
-
Бронированная дверь
-
Лифт
-
Игровая площадка
-
Видеонаблюдение
-
Супермаркет
-
Школа
-
Детский сад
Описание
ВСЕ ДОСТУПНЫЕ ПРЕДЛОЖЕНИЯ МОЖНО НАЙТИ ЗДЕСЬ www.topestate.md
Продается квартира площадью 54 кв.м., расположенная на улице Николае Тестемицану.
Планировка здания:
- 1 спальня
- Кухня,
- Гостиная,
- 2 ванные комнаты,
- Прихожая
- Балкон
Преимущества:
- Серый вариант
- Пластиковые окна
- Автономное отопление
- Тепло- и звукоизоляция
- Бронированная дверь
- Лифт
- Детская площадка
- Открытая парковка
- Закрытый двор
В непосредственной близости:
- Магазин
- Ресторан
- Аптека
- Детский сад
- Школа
Удобный доступ к общественному транспорту в любом направлении города.
0% комиссии для покупателей!
Компания TOP ESTATE поможет вам в процессе продажи/покупки недвижимости, земли или коммерческих помещений, предоставит юридические консультации в сфере недвижимости и поможет получить ипотечный кредит.

